| নির্বাচিত পোস্ট | লগইন | রেজিস্ট্রেশন করুন | রিফ্রেস |
কাতিআশা
বই এর পোকা, স্কেচ এর নেশা, পেশায় স্থপতী আর বাংলাদেশের প্রতি অসীম ভালবাসা
গত বছর জুলাইতে দেশে গিয়েছিলাম, সেসময় একটা বিয়েতে গিয়ে দেশের এক সনাম ধন্য আর্কিটেক্টের দেখা পেলাম। উনি আমার বেশ সিনিয়র, আমাকে খুব একটা চিনতে পারেননি, কারন আমি বুয়েটে ফোর্থ ইয়ারে উঠেই আমেরিকায় এসে ট্রান্সফার স্টুডেন্ট হিসাবে এখানে আর্কিটেকচার শেষ করি। যাহোক, উনার সাথে অনেক কথা হলো, দেশের স্থাপনা বিষয়েই, ..উনি জানতে চাইলেন, আমি আমেরিকাতে কোন ধরনের ডিজাইন এর কাজ করছি! উনি খুব ভাল করেই জানেন, আমেরিকাতে কোন সামান্য কিছু ডিজাইন করতেই কত চাপের মধ্যে দিয়ে যেতে হয় (বিল্ডিং কোড, জোনিং রেগুলেশন, পারমীট প্রসেস, আরও কত কি!) স্বাধীনতা বলতে কিছুই নেই আর্কিটেক্টদের! বিল্ডিং কোডের এই কঠোর নিয়মের কারনে আমেরিকাতে বিভিন্ন দূর্ঘটনা বিহীন, একটা সিসটেমাটিক শহর, রাস্তাঘাট, লোকালয়, পার্ক,..বলতে গেলে সম্পুর্ন একটা সুন্দর অবকাঠামো গড়ে উঠেছে, সেই সাথে প্রতিবন্ধী/handicapped দের জন্য সব রকমের সুবিধা! আজ পৃথিবীর মোটামুটি সব দেশই Building Code এর কঠের ব্যবহার শুরু হয়েছে, একমাত্র আমাদের দেশ ছাড়া!..আমি উনার সাথে এবিষয়ে অনেক আলাপ করলাম,-- উনি স্মীত হেসে জানালেন যে কোডের বিষয়ে উনি অবগত থাকলেও এসব এ দেশে সেটা প্রয়োগ করা সম্ভব না!.. রাজউক থেকে শুরু করে, কোন স্থপতীরা এ ব্যপারে স্যাক্রিফাইস করবেনা!--কারন এতে মনের মাধুরী মিশিয়ে ডিজাইন করা যাবেনা, একেকটা কাজ শেষ করতে দীর্ঘ সময় লেগে যাবে, ইত্যাদি!
আমি জানি, অনেকে এখানে আমাকে বলবেন, বিদেশে থেকে অনেক কথাই বলা যায়, দেশে এসে কিছু করে দেখান!..সেই পথেই এগুচ্ছি, আমার অনেক দিনের পরিকলপনা, দেশ যেয়ে বিল্ডিং কোড, ফায়ার কোড আর জোনিং রেগুলেশন নিয়ে কিছু একটা শুরু করা!
এজন্য চাই আমার প্রাক্তন স্থপতী বন্ধুদের সহযোগীতা, কিছুটা ত্যাগ, কিছু আবার নতুন করে পড়াশুনা/ট্রেইনিং (কোডের উপরে)! একটা বিল্ডিংয়ে ৭৫ জনের বেশী মানুষ হলে যে, সেখানে মিনিমাম ২ টা দরজা/Exit লাগে ভবন থেকে বের হতে, আর বের হবার জন্য পুরোটা পথ সিড়িসহ (ভবনের সবচেয়ে দুরের কোনা থেকে একেবারে বাইরে যাওয়া পর্যন্ত) কমপক্ষে ২ ঘন্টার অগ্নি নির্বাপক (2 HR Fire rated, min.) হতে হয়, তা আমাদের একজন স্থপতীও জানেন না, অথবা জানলেও প্রয়োগ করেননা ডিজাইনে!..এই সামান্য কোড রেগুলেশনটা মেনে চললে কত গার্মেন্ট শ্রমিক বেঁচে যেত আগুনের হাত থেকে!
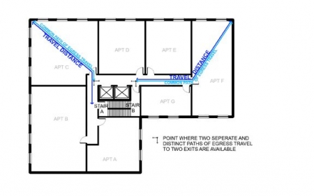
এই প্ল্যানে কিছু Exit/Egress System দেখানো হয়েছে।

একটি Fire rated সিড়ি।
দুটো Exit এর মধ্য দুরত্ব।
Building Code এর পাশাপাশি জোনিং/zoning রেগুলেশন থাকলে আগাছার মত বিলডিং গজিয়ে উঠতোনা!..জোনিং নিরধারন করে দেবে, কোথায় কোন ধরনের ভবন গড়ে উঠবে, কত তলা উঁচু হবে, সামনে, পেছনে, পাশে কতটুকু ছাড় দিতে হবে (যেন, দুর্ঘটনার সময়ে ফায়ার ডিপা্র্টমেন্টের গাড়ি সহজে ঢুকতে পারে) আমাদের দেশ ভুমিকম্প প্রবন এলাকা (Seismic Zone) এর মধ্যে পড়ে, সেজন্য Earthquake proof/seismic restrained Design শুরু করতে হবে নতুন বিল্ডিং গুলতে, আর যেগুলো পুরানো, সে গুলোকে আধুনিকায়ন বা, retrofit করতে হবে!... দেশপ্রেম এগুলোই! চিন্তা করে দেখুন, একটা বড়সড় ভুমিকমপ হলে ঢাকা শহরের কি অবস্থা হবে?
একটা নির্দিস্ট উচ্চতার পরে কিভাবে জোনিং কোড নির্ধারন করে দিচ্ছে ভবনের সর্বোচ্চ উচ্চতাকত হবে।
জোনিং রেগুলেশনের একটা স্কেচ।

এই স্কেচটি তে একটা বিলডিং এর ছাদে, অথবা মেশিন রুমে কিভাবে কোন ভারী যন্ত্র (ওয়াটার ট্যানক, জেনারেটর ইত্যাদি) ভুমিকমপ রোধক হিসাবে বসাতে হবে, সেটার ডিটেইল দেখানো হয়েছে।
প্রতিবন্ধী/handicapped দের জন্য ডিজাইনের নমুনা।
সিড়ির পাশাপাশি প্রতিবন্ধীদের জন্য ramp.
অনেক কিছু লেখার ছিল, সময়ের অভাবে লিখে শেষ করতে পারবনা! তবে, আমি আমার উদ্যোগ নিয়ে কাজ করে যাব ইনশাল্লাহ!
১২ ই ফেব্রুয়ারি, ২০১৯ রাত ৯:৫৪
কাতিআশা বলেছেন: ধন্যবাদ সুন্দর মতামতের জন্য!..হা, একটু টেকনিক্যাল হয়েছে বটে!..আমার পরিকল্পনার কথাটাই জানালাম, যেটা নিয়ে আমার দেশে ফিরে কাজ করার ইচ্ছা
২|
১২ ই ফেব্রুয়ারি, ২০১৯ দুপুর ১:১৩
রাজীব নুর বলেছেন: ভালো লাগলো পোষ্ট টি।
১২ ই ফেব্রুয়ারি, ২০১৯ রাত ৯:৫৫
কাতিআশা বলেছেন: ধন্যবাদ রাজীব ভাই, আপনার আদরের পরীসোনা কেন আছে?
৩|
১৩ ই ফেব্রুয়ারি, ২০১৯ ভোর ৬:০১
ল বলেছেন: Digital thinking - Much appreciated
১৪ ই ফেব্রুয়ারি, ২০১৯ রাত ২:৪৬
কাতিআশা বলেছেন: অনেক ধন্যবাদ ভাই পড়ার জন্য!
৪|
১৩ ই ফেব্রুয়ারি, ২০১৯ সকাল ৯:২৩
মলাসইলমুইনা বলেছেন: আমাদের দেশে কি জোনিং কোড আসলেই আছে ? আসলে আরো জরুরি প্রশ্নটা হলো সেগুলো কি খুব ইফেক্টিভলি ইউজ করা হয় ? বিল্ডিং কোডগুলো কি আপডেটেড ? কারণ বড় যতগুলো গার্মেন্টসে এক্সিডেন্ট হয়েছে গত কয়েক বছরে তার প্রত্যেকটাতেই মানুষের তুলনার এক্সিট রুট ছিল কম । এক্সিট রুট ঠিক থাকলে অনেক ক্ষেত্রেই মৃত্যুর সংখ্যা হয়তো অনেক কম হতো । আপনি দেশে গিয়ে এ নিয়ে কাজ করবেন জেনেই ভালো লাগলো । জরুরি একটা লেখা । আমি আপনার মতো আর্কিটেক্ট না কিন্তু আরবান পলিসির কোর্সে পড়ার কারণে এই জিনিসগুলো যে খুব দরকারি সেতা আমি জানি । আমার পড়ার অনেক জরুরি ব্যাপারই আপনি লিখেছেন বলেই মনে হয় ভালো লেগেছে আমার আপনার এই লেখাটা ।
১৪ ই ফেব্রুয়ারি, ২০১৯ রাত ২:৫৩
কাতিআশা বলেছেন: আসলেও আমাদের দেশে এসব কোন কোড ফলো করা হয়না,..সবাই আছে বাইরের সৌন্দর্য্য (Extreior facade/ toal form of the building- but not the function of the building!) নিয়ে! এখন ইনটারনেট এ সব মডেল বিলডিং কোড, জোনিং, প্রতিবন্ধীদের কোড সবই পিডিএফ এ পাওয়া যায়, কিন্তু কার এটো সময় আছে এগুলো রিসার্চ করে সেগুলো ডিজাইনে প্রয়োগ করার?
পড়ার জন্য অনেক ধন্যবাদ ভাইয়া!
৫|
১৩ ই ফেব্রুয়ারি, ২০১৯ সন্ধ্যা ৭:৩০
করুণাধারা বলেছেন: কাতিআশা, আপনার ভাবনাকে সাধুবাদ জানাই। দোয়া করি আপনার উদ্যোগ যেন সফল হয়।
কিছুটা টেকনিক্যাল হয়ে গেছে লেখাটা, সে কারণে অনেকেই পড়ছেন, আপনার ভাবনার সাথে একাত্মতা পোষণ করছেন কিন্তু মন্তব্য করতে পারছেন না মনে হয়। আসলে আমরা যারা ঢাকায় থাকি তারা প্রতি মুহূর্তে বাসস্থান নিয়ে নানারকম অসুবিধায় থাকি কিন্তু এগুলো কোথাও বলার জায়গা নেই। বিল্ডিং কোডে (আছে বলে শুনেছি) লিফট এবং সিঁড়ি হবে বিপরীত দিকে এবং ফায়ার এক্সিটের মাপ নির্দিষ্ট থাকে। অথচ অনেক বাড়িতে দেখেছি, লিফট এবং সিঁড়ি পাশাপাশি, ফায়ার এক্সিট খরচ বাঁচানোর জন্য মাপমত করা হয়নি। আপনি যে ভূমিকম্পের সম্ভাবনার কথা বলছেন, আশঙ্কা করা হয় যে ভূমিকম্প হলে অনিরাপদ গ্যাস লাইনের কারণে ঢাকা শহরের নানা জায়গায় আগুন ধরে যাবে কিন্তু নিভানোর জন্য ফায়ার সার্ভিসের গাড়ি পৌঁছাতে পারবে না!!! এমন ভাবেই বাড়ি গুলো
যত্রতত্র বানানো হচ্ছে। আমি আর্কিটেক্ট নই তাই এসব নিয়ে কিছু বলতে পারব না, তবে একটা কথা বলতে পারি যেটা আপনি লেখার শেষে উল্লেখ করেছেন- প্রতিবন্ধীদের জন্য বিল্ডিং গুলোতে কোন সুবিধা রাখা হয় না!! ঘরের বাথরুমের দরজা, সেটা এমন করে বানানো হয় যে হুইলচেয়ার ঢুকতে পারে না! বিপনী বিতান বলুন, শিক্ষায়তন বলুন, আবাসিক ভবন বলুন, কোথাও র্যাম্প থাকে না প্রতিবন্ধীদের জন্য। আমি আপনাকে অনুরোধ করব প্রথমেই এটা নিয়ে কাজ শুরু করতে। কোথা থেকে শুরু করবেন? আপনার বুয়েট থেকে! আপনি কি জানেন বুয়েটের মতো প্রতিষ্ঠানে কোন বিল্ডিংয়ে র্যাম্প নেই? এ কারণে কতটা অসুবিধা হয় অনেকের! সবচেয়ে হাস্যকর হলো বুয়েটের মেডিকেল সেন্টার। একবার আমি সেখানে একজন একজন পা ভাঙ্গা পরীক্ষার্থী নিয়ে যাই যার পা হাঁটুর উপর থেকে প্লাস্টার করা অর্থাৎ পা ভাঁজ করে বসতে পারে না, ক্রাচ নিয়ে কোনোমতে হাঁটতে পারে। মেডিকেল সেন্টার পুরনো আমলের তৈরি করা বাড়ি, প্রথমে ৭/৮ টি উঁচু সিঁড়ি ভেঙে একতলায় যেতে হয়। একতলায় ডাক্তাররা বসেন, সিক বেড দোতালায়। সেখানে উঠার উপায় কি? চেয়ারে বসিয়ে তারপর পরীক্ষার্থীদের সেখানে তুলতে হবে, কোন লিফট পর্যন্ত ছিল না (২০১৪)। আমি এই অদ্ভুত ডিজাইন নিয়ে বুয়েটের চিফ ইঞ্জিনিয়ারের সাথে কথা বলেছি, তিনি বিস্ময় প্রকাশ করেছেন, মাথা চুলকে বলেছেন, "এমন তো হওয়া উচিত না! যে হাঁটতে পারে না তারা কি করে দোতালায় উঠবে, প্রথমে ৭/৮টা উঁচু সিঁড়ি ভাঙার পর।" এই বলেই তার দায়িত্ব শেষ!!!!
আপনার কাছে অনুরোধ, আপনি এখান থেকেই আপনার কাজ শুরু করুন। আপনি এ কাজে সফল হন, এই দোয়া করি।
১৪ ই ফেব্রুয়ারি, ২০১৯ রাত ২:৫৬
কাতিআশা বলেছেন: আপনার সুচিন্তিত মতামতের জন্য অনেক ধন্যবাদ আপু!..দোয়া করবেন, আমার স্বপ্নটা একদিন পুরো সফল না হলেও অন্তত এর শুরু টা যেন হয়!
৬|
১৮ ই ফেব্রুয়ারি, ২০১৯ রাত ১০:৩৪
বোকা মানুষ বলতে চায় বলেছেন: সরকারি দফতরগুলোকে এ বিষয়ে সবার আগে অগ্রণী ভূমিকা পালন করতে হবে। গোড়াতেই তো গলদ, ফলে আর্কিটেক্টরাও মনের মাধুরী মিশিয়ে ডিজাইন করেন। বেশীরভাগ কমার্শিয়াল ভবন একেকটা মৃত্যুকূপ হয়ে গড়ে উঠেছে। যে কোন দুর্ঘটনায় প্রাণহানি অনিবার্য। কিন্তু এগুলো দেখার কেউ নেই। ![]()
৭|
২১ শে ফেব্রুয়ারি, ২০১৯ রাত ১২:২২
কাতিআশা বলেছেন: আর্কিটেক্ট দের এগিয়ে আসতে হবে সবার আগে..মোটামুটি সবাই কোড সম্পর্কে জানেও, কিন্তু চুপচাপ আছে,.... বুঝিনা কেন! পড়ার জন্য অনেক ধন্যবাদ ভাইয়া!
৮|
২৮ শে মার্চ, ২০১৯ রাত ১১:০২
শায়মা বলেছেন: অনেক কঠিন পোস্ট আপু।
তবুও যদি আমাদের দেশের মানুষগুলোর একটু উপকার হত।
এই যে আগুনে পুড়ে মরে যাওয়া। প্রতি বছর বছর একই ঘটনার পুনরাবৃত্তি। এসব কবে যে অবসান হবে। ![]()
০২ রা এপ্রিল, ২০১৯ রাত ১:৫৭
কাতিআশা বলেছেন: কোড নিয়ে ফেসবুকে সিনিয়র আর্কিটেক্টদের সাথে মত বিনিময় করেছি, ওনাদের কথা অনুযায়ী ২০০৫ সালের পরের সব বিলডিং নাকি কোড মেনে করা হচ্ছে!
৯|
২৮ শে মার্চ, ২০১৯ রাত ১১:২২
আখেনাটেন বলেছেন: আজকের বনানীর আগুন আপনার এই পোস্টের যৌক্তিকতাকে আরো বাড়িয়ে দিল। আমরা কি ভয়ঙ্কররকম অবস্থায় দিনযাপন করছি।
ঢাকার মেয়রকে বলতে শুনলাম ২১ তলা বিল্ডিং এর সিঁড়ির প্রশস্ততা মাত্র তিনফিট। ভাবা যায়।
চমৎকার লেখাটির জন্য অশেষ ধন্যবাদ কাতিআশা'পা।
০২ রা এপ্রিল, ২০১৯ রাত ১:৫৪
কাতিআশা বলেছেন: বিল্ডিং কোড অনুযায়ী সিড়ি হবে মোট লোকসংখ্যা (যারা ঐ বিল্ডিং এ বসবাস করে/থাকে, তার সাথে গুন করতে হবে একটা ফ্যাকটর বা ভ্যালু)
size of exit stair= no of occupant of the building X occupant load factor, বেশিরভাগ ক্ষেত্রেই মোটামুটি কমপক্ষে ৬ ফুট চওড়া!
১০|
০৯ ই মে, ২০১৯ রাত ৯:০৭
আর্কিওপটেরিক্স বলেছেন: সময় পেলে আমার ব্লগে ঘুরে আসবেন আপু ![]()
১১ ই মে, ২০১৯ রাত ২:৪২
কাতিআশা বলেছেন: ঠিক আছে ভাই!
১১|
১৭ ই ডিসেম্বর, ২০১৯ দুপুর ১:৫১
রূপম রিজওয়ান বলেছেন: ভাইয়া/আপু,আপনি বুয়েটিয়ান জেনে খুব ভালো লাগলো। এক বছর পর আমিও ওরকম কোথাও পড়বো,এরকম স্বপ্নই দেখি। যাহোক পোস্টটা বুঝার চেষ্টা করছি
। উচ্চমার্গীয় বিষয়বস্তু।
ভালো থাকুন।
২০ শে ডিসেম্বর, ২০১৯ রাত ১২:১১
কাতিআশা বলেছেন: আপু আমি!..গুড লাক আর অনেক ধন্যবাদ পড়ার জন্য!
১২|
১৮ ই ডিসেম্বর, ২০১৯ বিকাল ৪:৫১
শের শায়রী বলেছেন: আপনি লিখেছেন, একটা ভুমিকম্প হলে ঢাকা শহরের কি অবস্থা হবে ভাবুন তো? একজন ভুতাত্ত্বিক হিসাবে এই টুকু জানি ওয়ার্ল্ডের লার্জেষ্ট ডিজষ্টার হতে পারে সমস্ত কিছু যেভাবে অপরিকল্পিত ভাবে স্থাপিত।
কে কি বলল, সেদিকে কান না দিয়ে আপনার দেশ কে ভালোবাসার রেশ টুকু ভালো লাগছে।
২০ শে ডিসেম্বর, ২০১৯ রাত ১২:১০
কাতিআশা বলেছেন: অনেক ধন্যবাদ ভাইয়া পড়ার জন্য! দেশের আর্কিটেক্ট/ইন্জিনিয়ার দের ভুমিকা/সহযোগীতা খুবই প্রয়োজনীয় এখন..
©somewhere in net ltd.
১|
১২ ই ফেব্রুয়ারি, ২০১৯ ভোর ৬:১১
এস এম মামুন অর রশীদ বলেছেন: সুন্দর ও কাজের পোস্ট কিন্তু একটু বেশি টেকনিক্যাল হয়ে গেছে। টেকনিক্যাল জিনিসগুলো গল্পের ছলে লিখুন বা অনুরূপ বর্ণনাময় করুন, আর প্রতি ছবির সঙ্গে যথেষ্ট পরিমাণ টেক্সট রাখুন। তাহলে পোস্টে পাঠকের আগ্রহ ও উপকার দুইই হবে।